ČeskyCZ | SlovenskySK | EnglishEN | DeutschDE
Your basket
0 EUR
EUR
Austria
E-shop currency:
Select delivery country:

PERFORMANCE CALCULATOR FOR THE SELECTED SPACE

Enclosed area
m3
or
Room area
m2
Ceiling height
m


Required performance for a calculated room:
0 kW

DETAILED FILTER- STOVES

 
 
 
 

POWER TO WATER

POWER TO AIR

EXECUTION OF THE STOVE

 
 
 
 
 

FUEL

 
 
 
 

AVERAGE OF SMOKE FLUE

 
 
 
 
 
 
 
 

SMOKE FLUE CONNECTION

 
 
 

LOCATION OF SMOKE FLUE ON THE SIDE

 
 
 

ADDITIONAL REQUIREMENTS

 

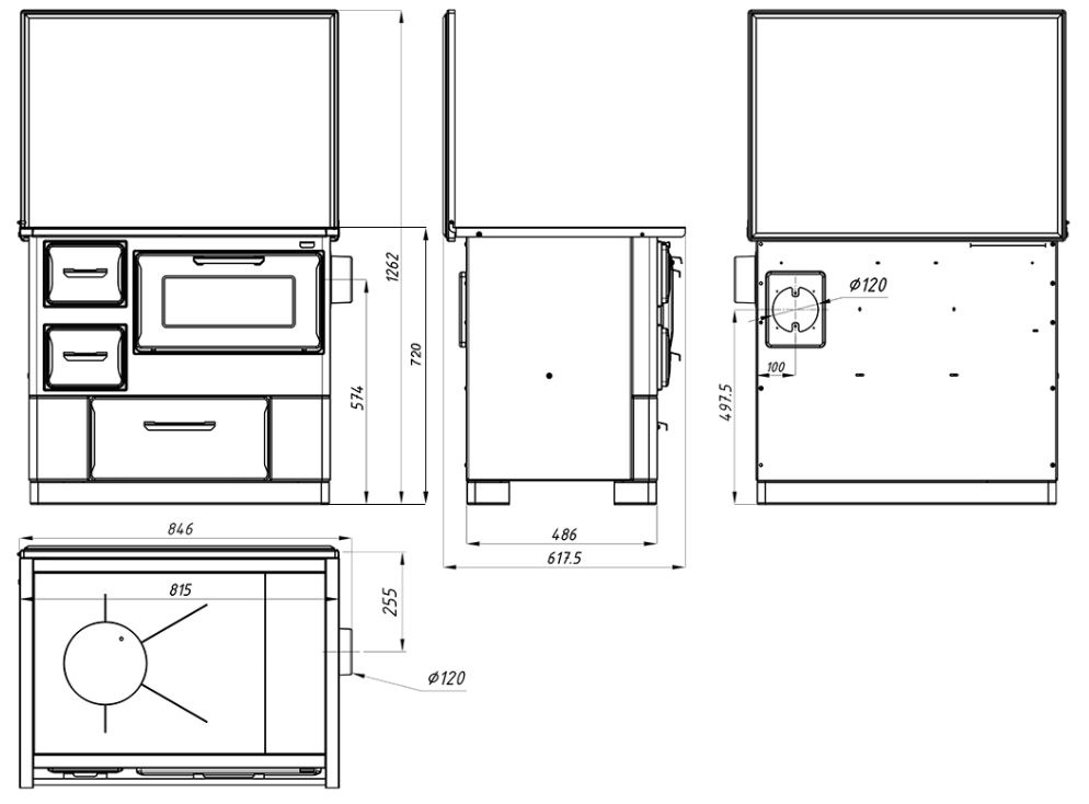
DIMENSION

width
height
depth

PRICE

MBS - sporák SD 7 N NEW LINE KRÉMOVÁ pravý

Manufacturer: MBS
Cat. no.: 638696
ATTENTION - orders received from 18.12.2025 will be processed in 2026
Closed from 19.12.2025 - 5.1.2026
Orders and inquiries will be processed from 6.1.2026
Availability:
IMMEDIATELY FOR DISPATCH
Price:
479 EUR
inc. VAT 21%


  pcs  
Paletová doprava   PALLET TRANSPORT
Transportation prices:
Pallet cargo - package XXL:  85 EUR

Related products

Recently viewed

IN STOCK
789 EUR